2025年6月10日,第五届全国大学生工业化建筑与智慧建造竞赛在大连理工大学举行。我校城市建设与安全工程学院土木工程专业(智能建造方向)团队凭借作品《海上公寓二期》,从全国190支参赛队伍中脱颖而出,荣获全国二等奖,展现了我校在新工科建设和智能建造人才培养方面的显著成效。
本次竞赛由中国土木工程学会、中国建筑学会等联合主办,是建筑类国家级权威赛事。本届竞赛以"智能建造与新型建筑工业化协同发展"为主题,吸引了包括东南大学、大连理工大学等在内的全国百余所高校、3500余名师生参与角逐。图1为指导老师和团队成员代表在决赛现场。

图1 参赛团队决赛现场
在李伟老师的指导下,由10名大三学生组成的参赛团队创新性地采用国产PKPM-BIM软件平台,将装配式建筑技术与智慧运维系统深度融合。其参赛作品《海上公寓二期》具有三大技术亮点:运用智能优化设计模块,提升了结构设计的效率,采用装配式设计与智慧施工平台为智慧建造打造信息平台,全程运用国产PKPM软件完成全流程设计,实现了国产软件替代。图2为深化设计拆分模型,图3 为预制板平面布置图。

图2 深化设计拆分模型

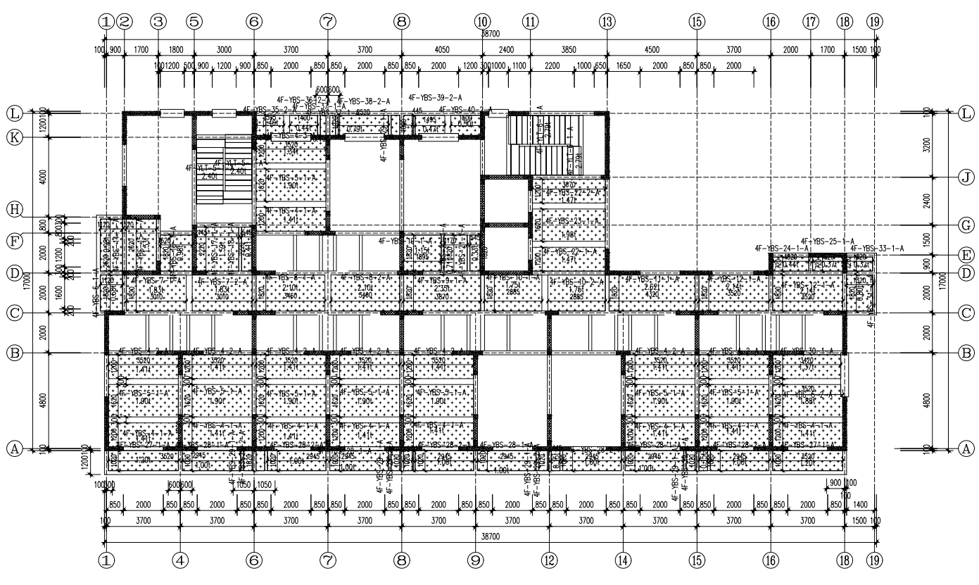
图3 预制板平面布置图
备赛期间,团队成员反复优化结构方案、调试模型,通宵攻克技术难题。在两个月内完成了竞赛要求的全部任务,在决赛汇报中,以其专业精彩的表现,受到现场评委的高度好评。这次比赛让学生真正体会到国产软件的应用潜力,也检验了课堂所学。
此次获奖是我校持续推进“新工科”建设、深化创新创业教育的又一成果。近年来,学校拓宽教学内容,不断提升学生在数字化建造领域的实践能力。未来,我校将继续以赛促学、以赛促创,为建筑行业高质量发展输送更多创新人才。